眾所周知,我國石材資源豐富,花崗巖石材品種頗多,無論是普通的黑白灰,還是多彩的黃綠紅,都能在石材市場上看到。而且在各大工程場所應用廣泛。近年來各種自建別墅風靡,在外墻的石材上也很多選擇了國產的黃色,紅色花崗巖。
這個星級酒店外墻單方造價只有900塊!竟也能用廉價石材營造出專屬高級感!
在一些高端的酒店、寫字樓項目,預算充足,幕墻石材大多選用昂貴的進口花崗巖。一些巴西、印度等國的進口花崗巖品種,確實色彩紋理比較獨特漂亮。但是便宜的國產花崗巖就不能做出好的幕墻效果了嗎?今天分享一個星級酒店的石材幕墻設計。采用的是國產的蝦紅石材,你看看覺得效果怎么樣?
以下文章來源于:都設設計
2019年底成都協信希爾頓酒店開業
經歷了幾年的停工和預算的縮減
以及業主管理團隊的更替
雖然還有很多細節沒有達到設計的效果
但是它卻是都設第一個成功的
低造價高完成度的作品
從這個意義上來說
這是一個很值得去分析的項目

根據造價的縮減
都設對外立面進行了重新的更加細致的處理
讓所有的人都想象不出
這是一個外墻單方造價只有900的酒店
隨著房地產投資的減速
低造價的項目越來越多
提高這部分項目的完成度更具有社會意義

本文所涉及成都協信希爾頓酒店圖片及圖紙,由上海都設營造建筑設計事務所有限公司所有,表現圖紙來自于專業機構,照片除標注外來自于存在建筑。
本項目立項之時是作為整個片區的
綜合開發的一部分
當時整體規劃是40萬平米左右的住宅
配套一個五星級酒店一個甲級寫字樓
以及一條商業街
但一期開發完成之后,甲方并未獲得后續土地
這樣一來這個酒店就成了一個雞肋
(中國目前開發商大多都是為了拿地而不得不做酒店)
自然就要緊摳造價

一般而言,方案設計公司對于造價的控制
往往體現在外立面上
但外立面的造價其實在酒店的整體造價中
只占10%都不到
因此當這個酒店從地產配套
變為要靠自身運營來賺錢的時候
這個酒店是否在經濟上成立才是第一的

設計師必須在恒定的建筑面積下力求
能夠有最多的客房
這樣才能提高整個項目的“房效比”
從而降低每一個客房的“造價”
實現運營上的盈利
因此本項目的完成度控制
實際上是兩個方面:
1. 從平面上做到極致的集約,提供最多的運營功能面積
2. 外立面在嚴苛的造價下實現高檔酒店的品質并“耐看”
01
集約化的平面設計
L形的板式布局
在效率方面,板式酒店擁有更多的優勢
光核心筒一項,板式酒店就比塔樓
要省掉30%以上的面積
在此基礎上精雕細刻每一個后勤空間
每層節省5-10個平方一個酒店
就能多出幾個標準間

最終,本案在地上面積3.4萬的前提下
實現了一個318間(296個鑰匙間)
客房標準間46平米的標準希爾頓酒店
這可以說是一個酒店業的奇跡
也是為這個酒店能夠盈利打下了良好的基礎

02
外立面完成度控制
作為一個國際五星級的酒店
一開始外立面的造價并不低
但由于內外部因素的影響,結構封頂后
這個酒店停工了三年,到重新啟動的時候
外立面只有900塊的單方預算
這個時候
要么改外墻材料,要么就是想辦法解決問題




放棄原設計精密的雕刻
面對問題的時候,如果直接就妥協
那是一種不負責任的表現
一味堅持不可能實現的設計也是一種懶惰
造價與完成度并非死敵,合適的策略
以及精妙的設計往往能夠出其不意
03
石材的選擇
首先設計師和甲方一致的目標是
保留石材幕墻,在900的造價下
改變原來開放式幕墻的做法采用打膠
而其他地方不太能夠再省錢
只能在石材本身上去考慮

最終120塊錢單方的石材
可以選擇的只有
顏色發紅并且色差極大的“蝦紅”
這個石材的顏色粉紅不符合本項目的要求
但做成荔枝面能夠接近灰色花崗石
并且能夠有效地減少色差

不同的蝦紅表面的色彩變化
04
立面的策略
廉價石材的處理方式
面對色差較大、質感不佳的石材
設計上應該要量身定做
首先盡量避免大面的石材做法
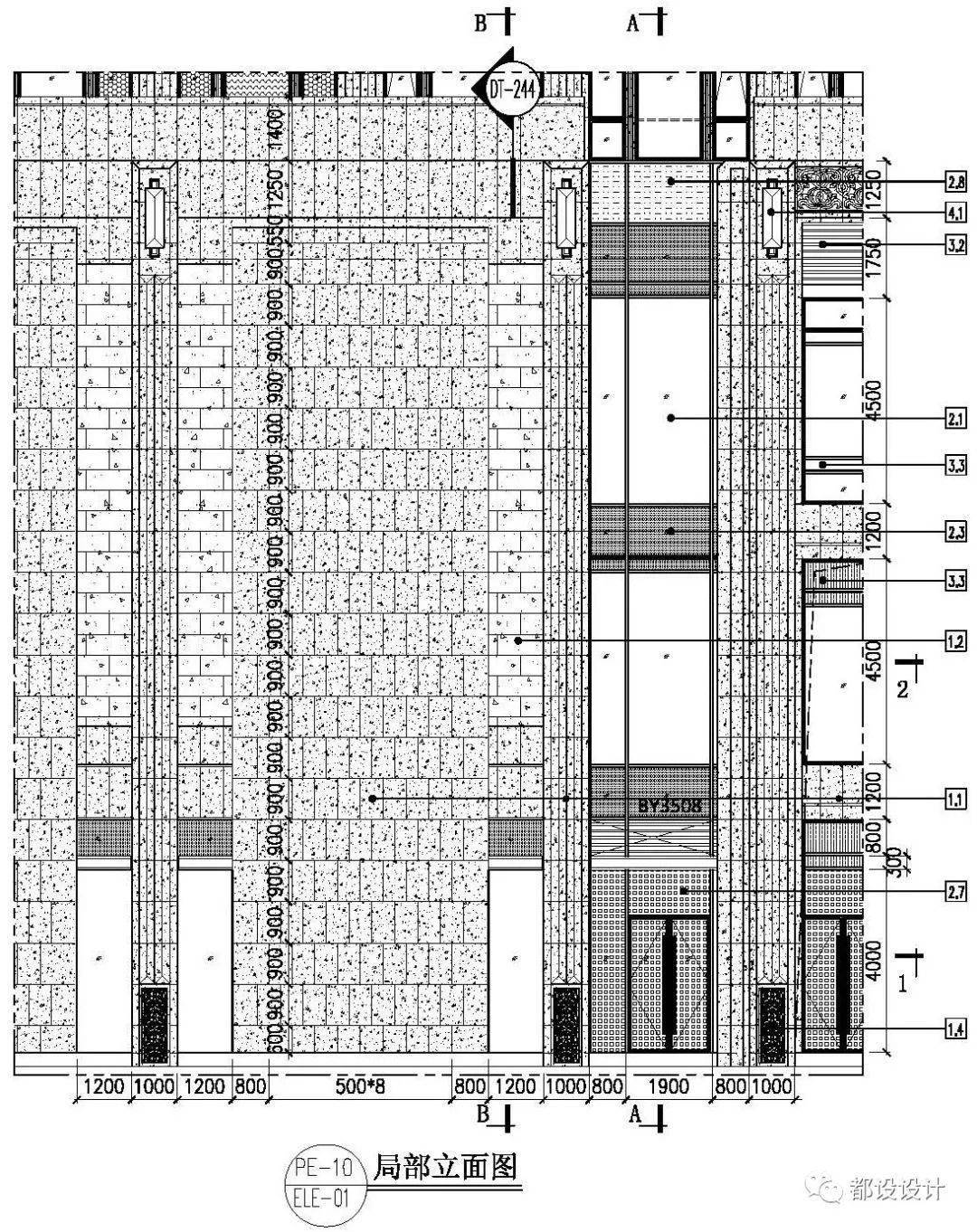
設計上用“線條”的方式來處理
這個不僅符合酒店標準窗的特性
而且將石材的材質表達出來又避免了色差




通過線條感避免低價石材的弱點
其次在不可避免的大面的石材的地方
使用“凹槽”加“線條”的方式來處理
并且采用不同面處理的石材形成層次感
在石材的劃分上采用“錯縫”“橫豎縫
對應不同表面的石材”等手法
每幾層一個光面線條“勾縫”


(@lkg)


考究的石材面
05
立面的策略
廉價石材的高級感
對于一個國際品牌的五星級酒店
如何擁有其獨特的氣質
是擺在設計者面前的一個課題
盡管造價很低,但是經過精心的設計
依然可以達到低調奢華的要求

在整個項目中
三角形的小柱是一個最主要的語言
除了“變面為線”處理廉價石材的色差
更為重要的是小三角的細柱
賦予整個建筑一種精致感和獨特的氣質
三角面增加了立面的層次感
在陽光下富有陰影關系



小三角的標準單元與轉角單元

施工中的轉角單元(@lkg)



入口處三棱面石材細柱的處理
除了標準單元的三棱之外
窗框同樣處理成兩棱
整個建筑語匯統一并且做法一致
對于施工的管控也相對容易
(低造價幕墻很難找到大型的幕墻施工企業)
窗框處的石材纖細有力
是本項目精致程度的最大體現


纖細的兩棱石材窗框與三棱的細柱形成統一且有變化的韻律

施工中的窗框(@lkg)
細塊的石材如果按照常規的45度拼
會出現很多的豁邊
并且將交界面直接暴露在外
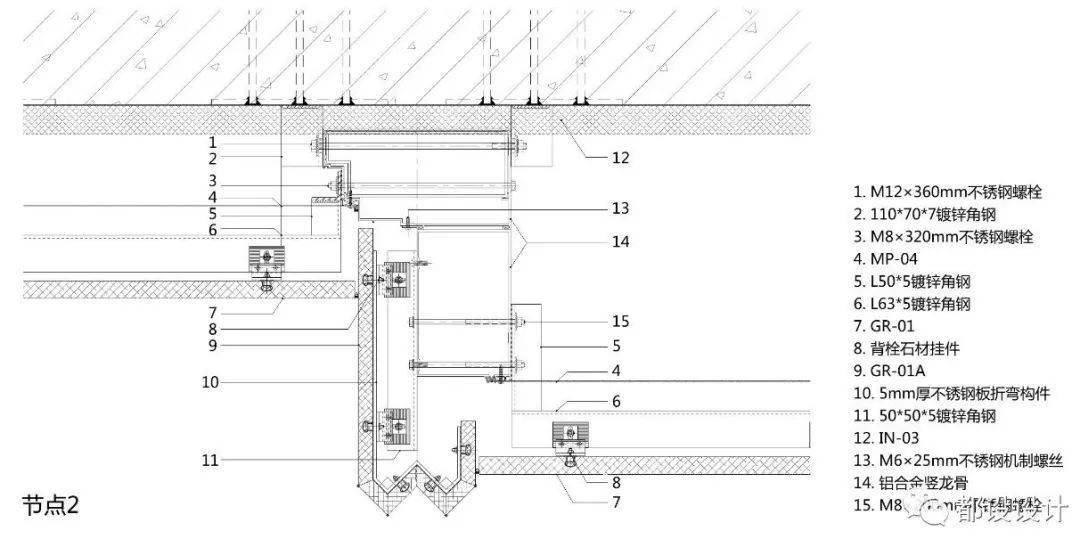
節點設計中
將兩塊石材采用90度半咬合的拼接
利用花崗石本身的硬度
形成一條小凹槽
而不是一味去追求難以達到的“尖”


90度半咬合的拼接
06
立面的策略
對外立面機電出風口的處理
都設一直以來都以項目總協調的方式
統籌項目的整體設計
機電的處理是酒店設計完成度控制的重要一環
除了對大型設備的遮擋設置之外
結合立面對機電口的處理是
完成度控制最高級的地方

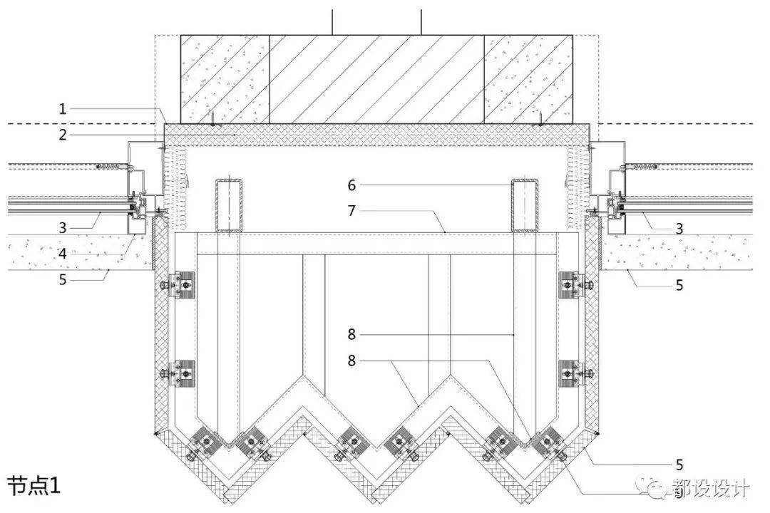
利用石材墻面造型處理機電排風口
07
結語
當客觀的造價限制條件擺在面前時
積極的應對方能取得好的成果
而消極的去在材料縮減上做文章
是不負責任的表現
同樣,業主也要知道無論多么強的設計
只能把900的做得像1200的合理的造價
依然是一個精品項目的基礎

如同本項目
完成度的控制不僅僅是外立面
合理的功能、高效的流線、機電結構的處理
都是完成度不可或缺的一環

越是低造價越需要高的設計費
因為達到同樣效果的難度更大
這方面協信希爾頓的業主在設計費方面
沒有去相應的省錢,而且管理團隊非常的專業
低造價與完成度并非死敵
而低設計費一定是完成度的天敵
END
客服熱線:











